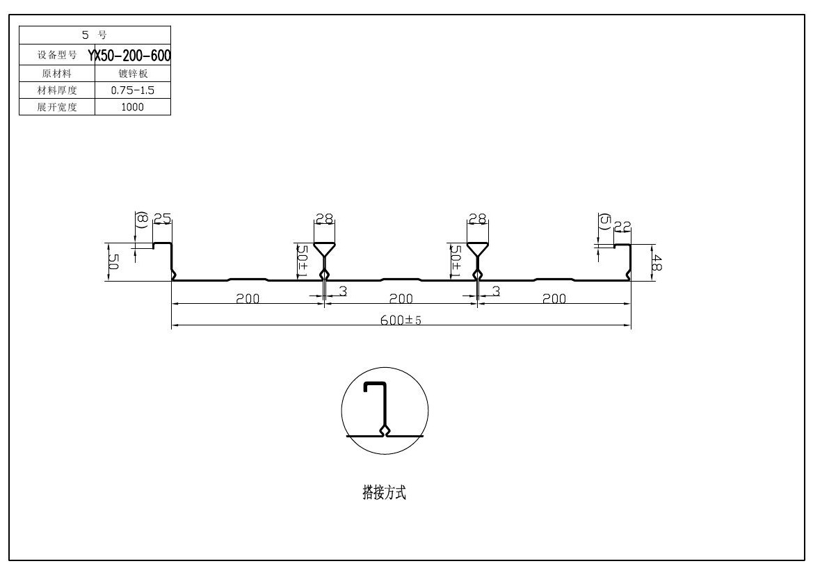
楼承板安装工艺
海逵楼承板的施工工艺流程大体是这样的:弹线→清板→吊运→布板→切割→压合→侧焊→端焊→留洞→封堵→验收→栓钉→布筋→埋件→浇筑→养护。当然这么多的流程是离不开好的劳动组织,以下过程也可按照现场实际情况另行处理。
劳动组织要分两组:
劳动组织要分两组:
组负责运料,包括清料、倒运,直至按照施工进度准确无误地将楼承板吊运至施工部位,包括起重工为5人;
第二组负责铺设,包括布筋、裁切、安装、留洞。每3人为一小组,负责一个节间,4个小组在同一作业层同时作业。下道工序绑扎钢筋与浇筑混凝土时应留派专人对铺设的楼承板加强维护。具体的做法法是:


一、先在铺板区弹出钢梁的中心线,主梁的中心线是铺设楼承板固定位置的控制线。由主梁的中心线控制楼承板搭接钢梁的搭接宽度,并决定楼承板与钢梁熔透焊接的焊点位置。次梁的中心线将决定熔透焊栓钉的焊接位置。因楼承板铺设后难以观测次梁翼缘的具体位置,故将次梁的中心线及次梁翼缘宽度返弹在主梁的中心线上,固定栓钉时应将次梁的中心线及次梁翼缘宽度再返弹到次梁面上的楼承板上。
二、在堆料场地将楼承板分层分区按料单清理出,并注明编号,区分清楚层、区、号,用记号笔标明,并准确无误地运至施工指定部位。
三、吊运时采用专用软吊索,以保证楼承板板材整体不变形、局部不卷边。钢结构设计多层的一般采用3层一节柱安装工艺,(单层的就不用多说了)安装楼承板时与钢结构柱梁同步施工,至少应相差3层。因此楼承板吊运时只能从上层的梁柱间穿套,而起重工应分层在梁柱间控制。
四、采用等离子切割机或剪板钳裁剪边角,裁切放线时富余量应控制在5mm范围内,浇筑混凝土时应采取措施,防止漏浆。
五、楼承板与楼承板侧板间连接采用咬口钳压合,使单片楼承板间连成整板。先点焊楼承板侧边,再固定两端头,后采用栓钉固定。
六、加强混凝土养护。
联系海逵
无锡海逵楼承板是专业楼承板厂家,提供开、缩、闭口楼承板、压型钢板、钢筋桁架楼承板、铝镁锰板及CZ型钢,厂家直销,价格优惠!

