组合楼承板的施工细节有哪些?
你知道组合楼承板的施工细节有哪些吗?不知道的就来看看小编为您总结的吧!
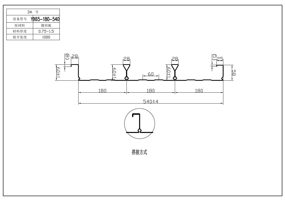
组合楼承板重机生产的钢楼承板形状简洁,波度大,强度高,安装时铺置焊接钢筋网后与混凝土观场浇灌组合,粘合性好,在高层建筑上既可以省去钢模板,又可以减轻楼层承载,在达到同等承受能力的前提下,使工程用钢量减少,从而节省投资。楼承板间用专用夹紧钳咬合压孔连接;堵头用专用镀锌堵头板与楼承板及钢梁点焊。


当楼面层结构标高变化不一致时,采取加焊型钢措施,使水平结构呈台阶过渡,当降低标高时工字梁腹板加焊角钢;抬升标高时工字梁翼缘加焊槽钢。当遇到楼面有预留洞口时 尺寸一般是大于500mm×500mm时采用先开洞措施,即在钢梁上加焊型钢托梁分隔,增加洞口刚度,网片钢筋在洞口断开,并与型钢焊接;洞口尺寸小于500mm×500mm时采取后开洞措施,即在楼承板上增加堵头分割板,网片钢筋贯通,混凝土浇筑成型后可剪断钢筋。
下一篇:什么样的标准是好的楼承板
上一篇:楼承板在铺设施工过程中的配筋要求”
联系海逵
无锡海逵楼承板是专业楼承板厂家,提供开、缩、闭口楼承板、压型钢板、钢筋桁架楼承板、铝镁锰板及CZ型钢,厂家直销,价格优惠!

