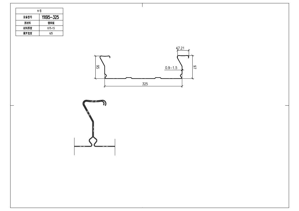
YX95-325闭口楼承板
产品分类: 楼承板
YX95-325闭口楼承板节省大量临时性模板,省去全部或部分模板支撑;作为受拉钢筋使用,减少钢筋的制作和安装工作;减少混凝土用量,减轻结构的荷载,适于高层建筑。
订购热线:152-5153-6295
产品详情
YX95-325闭口楼承板节省大量临时性模板,省去全部或部分模板支撑;作为受拉钢筋使用,减少钢筋的制作和安装工作;减少混凝土用量,减轻结构的荷载,适于高层建筑。
一、YX95-325闭口楼承板应用
产品广泛用于电厂、电力设备公司、汽车展厅、钢结构厂房、水泥库房、钢结构办公室、机场候机楼、火车站、体育场馆、音乐厅、大剧院、大型市、物流中心、奥运场馆体育场馆等钢结构建筑。适应主体钢结构快速施工的要求,能够在短时间内提供坚定的功课平台,并可采用多个楼层铺设压型钢板,分层浇筑混凝土板的流水施工。
二、YX95-325楼承板主要特点
1:适应主体钢结构快速施工的要求,能够在短时间内提供坚定的作业平台,并可采用多个楼层铺设压型钢板,分层浇筑混凝土板的流水施工。
2:在使用阶段楼承板作为混凝土楼板的受拉钢筋,也提高了楼板的刚度,节省了钢筋和混凝土的用量。
3:压型板表面压纹使楼承板与混凝土之间产生大的结合力,使二者形成整体,配以加劲肋,使楼承板系统具有高强承载力。
4:在悬臂条件下,楼承板仅作为性模板。悬挑的长度可根据楼承板的截面特性来定。为了防止悬挑板的开裂,需在支座处依结构工程师的设计配上负筋。
三、YX95-325闭口楼承板与普通开口板相比安装技术优势
1:闭口楼承板严格按照设计铺板图在工厂加工,排板顺序均已编号,现场施工无需切割和补板,方便于钢构公司现场安装。
2:闭口楼承板排板时只需按跨距顺排,与钢梁顺接时,由于板底平整,有足够与钢梁实接面积。因此不用处理可直接铺过去(开口板因要避免与钢梁虚搭而需切割补板)。
3:开口板在端口处应封堵板,以免浇筑混凝土进从板底开口漏浆,而闭口楼承板因腹板闭合而不用端头堵板。
4:闭口楼承板因板底平整,无论与钢梁横搭还是顺搭,均能与钢梁上翼板充分结合,因此钢梁上翼板顶面无需喷防火涂料。而开口型钢承板与钢梁之间具有空洞,需做肩塞补满空洞。
5:闭口楼承板完全替代下层钢筋,减少现场钢筋制作量,可减轻现场劳动量,加快施工速度。同时取消原设计下层钢筋,可为楼板中铺设电线套管提供更大空间。
采用闭口楼承板与开口型钢承板组合楼板相比,可以取消板底防火涂料,完全替代下层钢筋,并可减薄楼板厚度,节省混凝土用量,闭口楼承板独特的悬吊系统还可节约机电管道安装成本。另外由于上述优势可明显加快加工速度,缩短工期。因此,采用闭口楼承板一方面可降低工程直接成本,另一方面又可降低工程管道费用。

上一个:YX95-300闭口楼承板 下一个: YXB65-170-510闭口楼承板





